*** NEW *** – BUILD PLOT FOR 2x SEMI-DETACHED CONTEMPORARY HOMES WITH FULL PLANNING PERMISSION – Superb Opportunity, Ready To Start Build Project, GDV Predicted c.£600,000, All Permissions / Approval Documentation In Place – Rossendale Borough Council Ref: 2022/0165
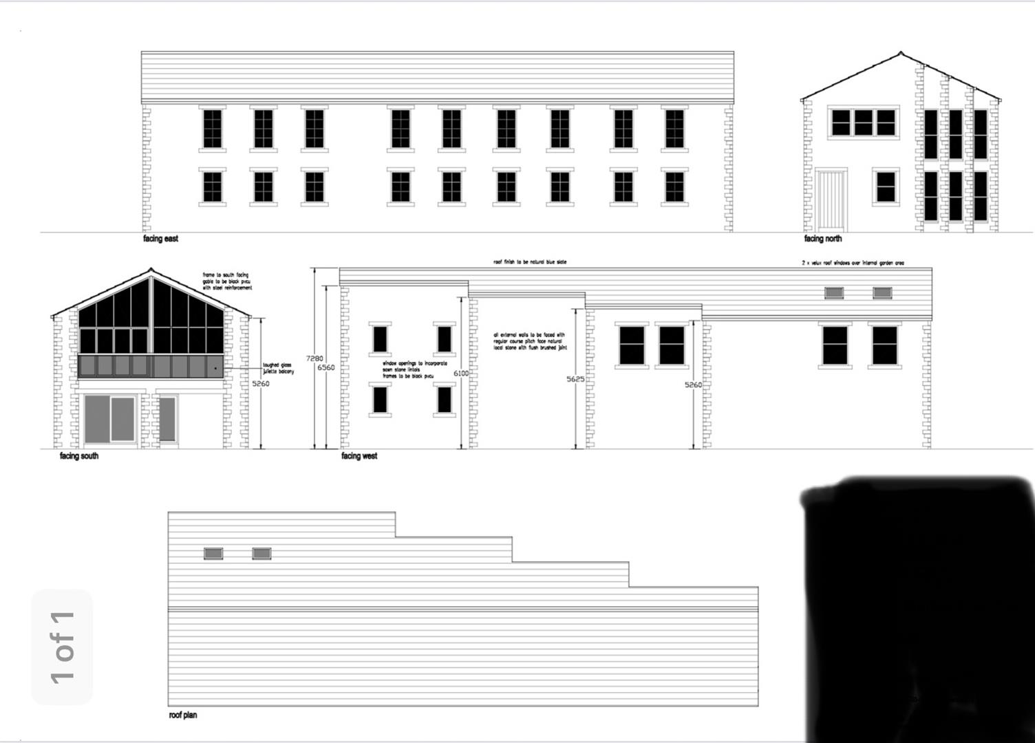
Cliff Bank Hamlet, off Burnley Road East, Rossendale is an usual development with full planning permission for 2 homes, designed as a 2/3rd - 1/3 rd split dwelling (or could be made as one detached subject to necessary amendment). Designed to match other buildings close by, in the style of a stone mill building, featuring large open plan living, upside-down style living, large windows and a fully glazed south-facing façade. PLEASE NOTE - The adjacent retaining wall feature is not the responsibility of the owner of this plot.
Designed with accessibility and future-proofing in mind, the properties have been planned to incorporate many features which would both improve their appeal and their value too. As such, the site is predicted to have a GDV of c.£600k, thereby representing an outstanding investment opportunity.
With approval documentation available and a material start made, planning here is extant. The two properties to be built as planned, represent both a contemporary, architect designed scheme and a high quality, generously spacious and appealing living areas.
- Full, extant planning permission for 2 units
- All required site investigations completed
- Structural Engineer's Drawings & Calculations Completed For ICF Construction
- Initial Planning conditions signed off
- SAP Calculations completed
- UFH System planned & specified through Continal UFH
- Construction type - Insulated Concrete Forms with stone outer, SIPS roof, triple glazed windows
- Predicted End Value - Unit 1 @ £350k, Unit 2 @ £250k
Situated close to local amenities and with open countryside a short walk away, the site enjoys a convenient location which is ideal for connections to public transport, commuter routes and motorway links too. With open countryside and parkland walks both nearby, the site also gives easy access to a 24 hour gym, dance school and food options within moments. Bacup & Rawtenstall Grammar, Waterfoot Primary School and Valley Academy are all within walking distance, while a great range of further shopping, sports & leisure, entertainment and other local amenities are all within a short distance too.
Council Tax: Band TBD - New Build, Rate not yet determined
Tenure: Freehold
Stamp Duty: 0% up to £125,000, 2% of the amount between £125,001 and £250,000, 5% of the amount between £250,001 & £925,000, 10% of the amount between £925,001 & £1,500,000, 12% of the amount above £1,500,000. For some purchases, an additional 3% surcharge may be payable on properties with a sale price of £40,000 and over. Please call us for any clarification on the new Stamp Duty system or to find out what this means for your purchase.
Note: This property belongs to the directors of Farrow & Farrow.
AML: We are required to conduct Anti-Money Laundering checks on all buyers. These will be completed at a cost of £25+vat per named buyer, payable at the point of offer acceptance and being non-refundable.
Unless stated otherwise, these details may be in a draft format subject to approval by the property's vendors. Your attention is drawn to the fact that we have been unable to confirm whether certain items included with this property are in full working order. Any prospective purchaser must satisfy themselves as to the condition of any particular item and no employee of Farrow & Farrow has the authority to make any guarantees in any regard. The dimensions stated have been measured electronically and as such may have a margin of error, nor should they be relied upon for the purchase or placement of furnishings, floor coverings etc. Details provided within these property particulars are subject to potential errors, but have been approved by the vendor(s) and in any event, errors and omissions are excepted. These property details do not in any way, constitute any part of an offer or contract, nor should they be relied upon solely or as a statement of fact. In the event of any structural changes or developments to the property, any prospective purchaser should satisfy themselves that all appropriate approvals from Planning, Building Control etc, have been obtained and complied with.