*** HIGH STREET SHOP UNIT TO LET – EXCELLENT CONDITION, PERFECTLY SITUATED OPPOSITE IN RAWTENSTALL CENTRE *** Accommodation Over 4 Floors, Gas Combi-Boiler Heating, Excellent Position Near Other Essential Amenities, Ideal For a Variety Of Purposes – CALL US EXCLUSIVELY TO VIEW
Kay Street, Rawtenstall, Rossendale is a 4 floor, high street shop unit available for rent. Situated in the centre of Rawtenstall, close to a range of essential amenities and perfectly position opposite Rawtenstall's main regeneration project.
Well maintained and well presented too, this property offers excellent potential and also benefits, unusually, form gas combi-boiler heating.
Suitable for a variety of potential uses, this property will be available to let soon and early viewing / interest is highly recommended in order to avoid missing out.
* High Street Shop Premises Over 4 Floors * Central Rawtenstall Location * Ideally Positioned Near Essential Amenitie
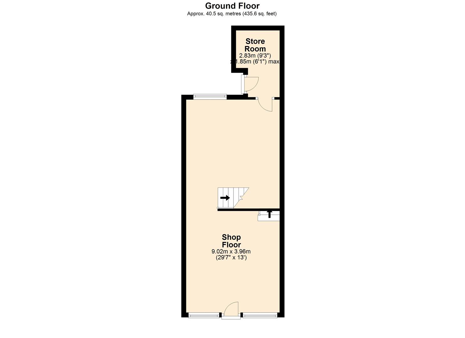
9.02m x 3.96m (29'7" x 13'0")
2.83m x 1.85m (9'3" x 6'1")
5.20m x 3.96m (17'1" x 13'0")
3.65m x 2.54m (12'0" x 8'4")
2.19m x 1.28m (7'2" x 4'2")
1.32m x 1.32m (4'4" x 4'4")
6.16m x 3.97m (20'3" x 13'0")
4.95m x 3.98m (16'3" x 13'1")
Currently Business Rates Exempt
Exact Terms to be Negotiated
Unless stated otherwise, these details may be in a draft format subject to approval by the property's vendors. Your attention is drawn to the fact that we have been unable to confirm whether certain items included with this property are in full working order. Any prospective purchaser must satisfy themselves as to the condition of any particular item and no employee of Farrow & Farrow has the authority to make any guarantees in any regard. The dimensions stated have been measured electronically and as such may have a margin of error, nor should they be relied upon for the purchase or placement of furnishings, floor coverings etc. Details provided within these property particulars are subject to potential errors, but have been approved by the vendor(s) and in any event, errors and omissions are excepted. These property details do not in any way, constitute any part of an offer or contract, nor should they be relied upon solely or as a statement of fact. In the event of any structural changes or developments to the property, any prospective purchaser should satisfy themselves that all appropriate approvals from Planning, Building Control etc, have been obtained and complied with.